︎
Projektauswahl
*
Gebaut
*
Geplant
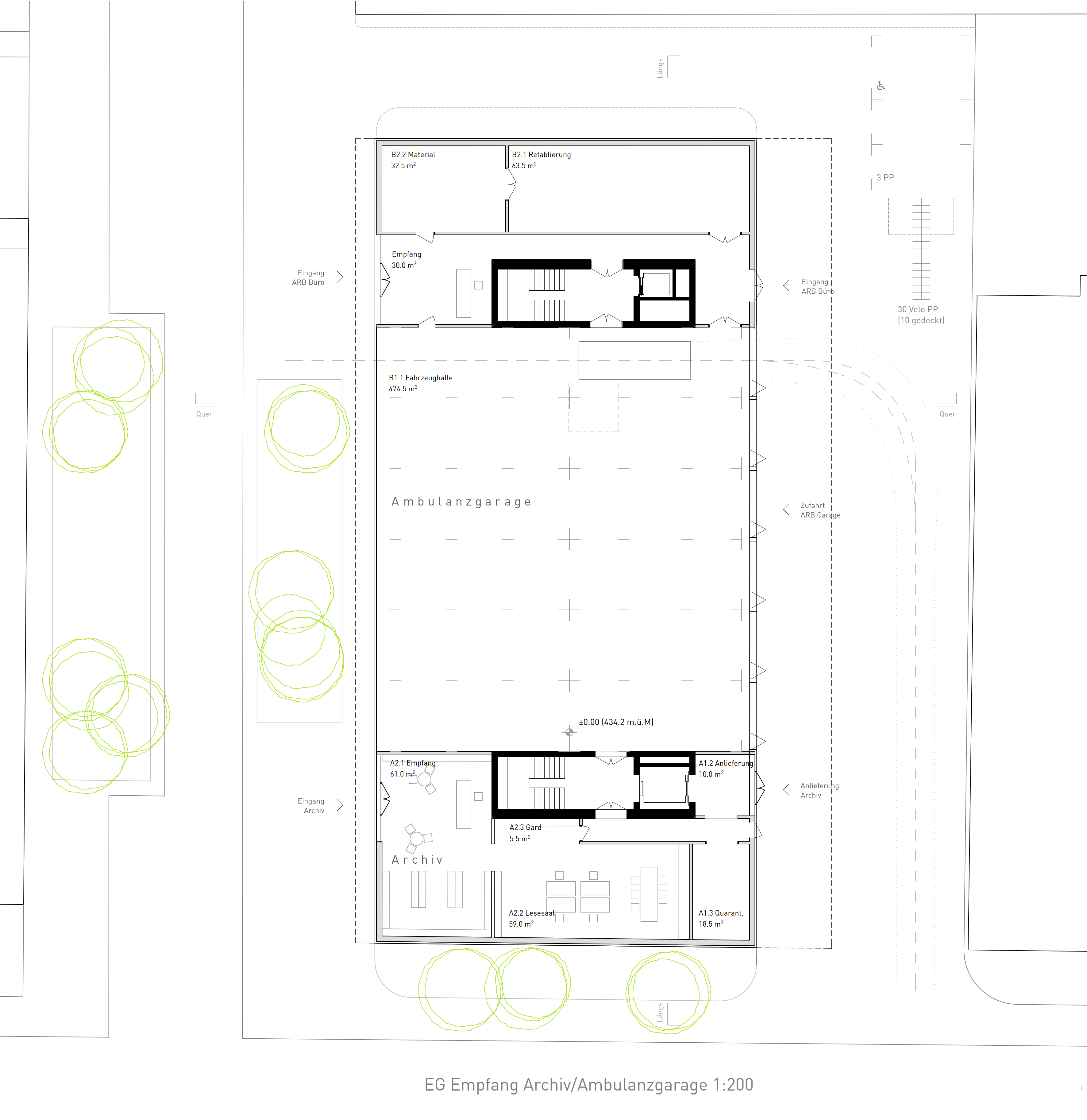
Das komplexe Raumprogram des neuen kombinierten Stadtarchivs und der Ambulanzgarage findet durch geschickte Stapelung in einem kompakten Volumen Platz.
Stadtarchiv und Ambulanzgarage
Wettbewerb, 6. Preis
Biel
Über/Kontakt
*
©
Krayer Buschmann Architekten