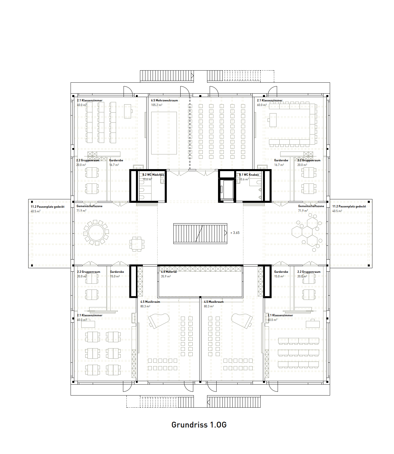
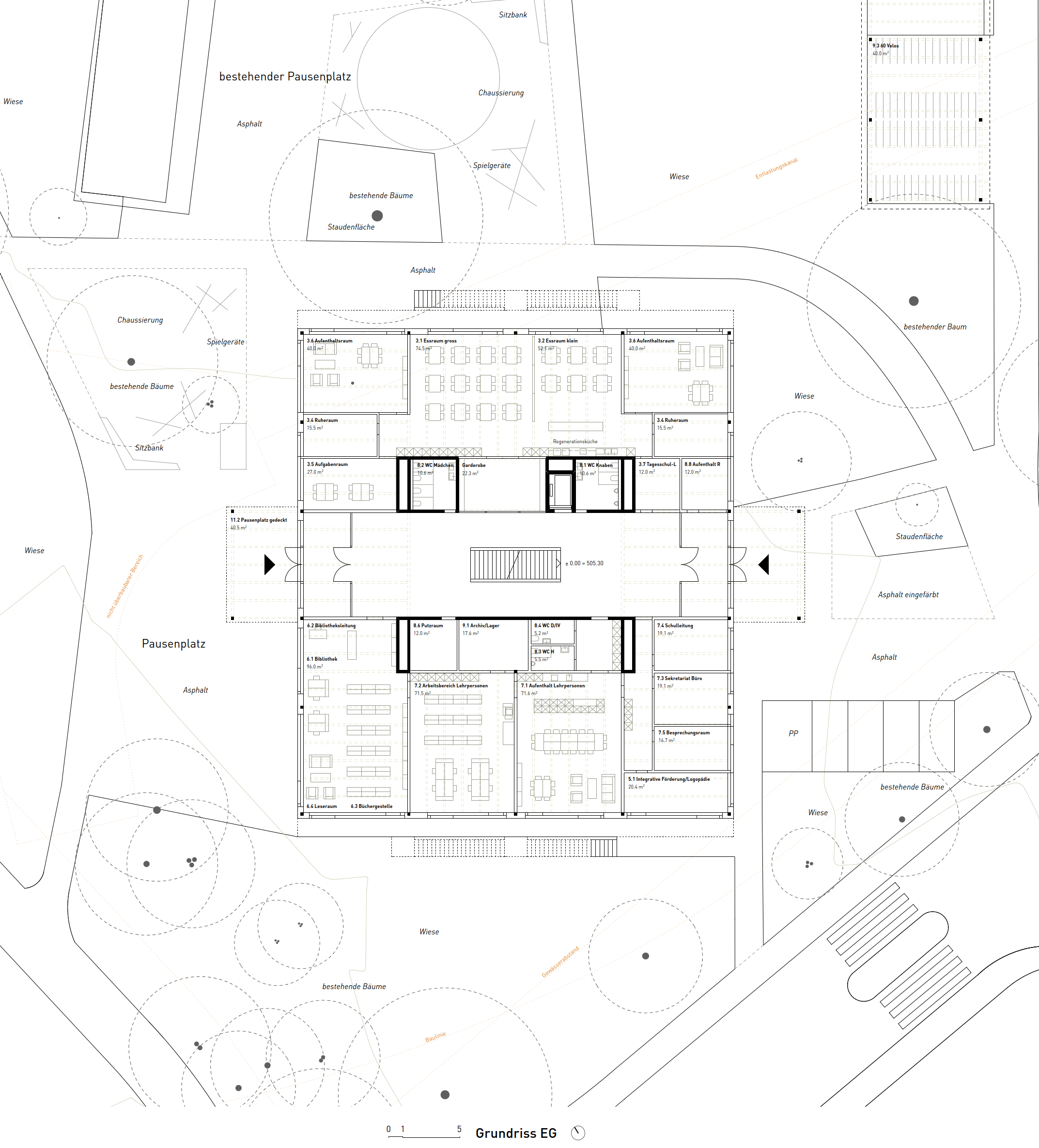
Der neue Erweiterungsbau der Volksschule ist ein sehr kompaktes Volumen. Auf drei Geschossen stapeln sich gewissermassen die Klassenräume. Die reduzierte Tragkonstruktion erlaubt eine flexible Nutzung, die kompakte Anordung ermöglicht grosszügige Gemeinschaftsflächen.
Über Balkone, die gleichzeitig als Fluchtweg dienen, haben alle Zimmer eine unmittelbare Beziehung zum Aussenraum. Auf zeitgemässe Art knüpft das neue Schulhaus so an der Architektur des Bestandes an und verwebt die Anlage zum Ensemble.
Über Balkone, die gleichzeitig als Fluchtweg dienen, haben alle Zimmer eine unmittelbare Beziehung zum Aussenraum. Auf zeitgemässe Art knüpft das neue Schulhaus so an der Architektur des Bestandes an und verwebt die Anlage zum Ensemble.
Erweiterung Volksschule Marzili
Erweiterung Volksschule Marzili
Wettbewerb, 4. Rang, 3. Preis
zusammen mit Harald König
zusammen mit Harald König